Продается 1-комн. квартира, 40.2 м², этаж 3/20

10 600 000 руб.
Москва, Новомосковский административный округ, Филимонковский район, Московский, микрорайон Первый Московский, жилой комплекс Первый Московский, 7-я фаза, 3
Филатов Луг - 10 мин.
Рассказовка - 10 мин.
Киевское - 9 км.

ДОРОШЕНКО АНЖЕЛА ИГОРЕВНА

+7 (916) 567-43-08

Об объекте

Апартаменты - нет
Этаж - 3
Этажность - 20
Комнат в квартире - 1
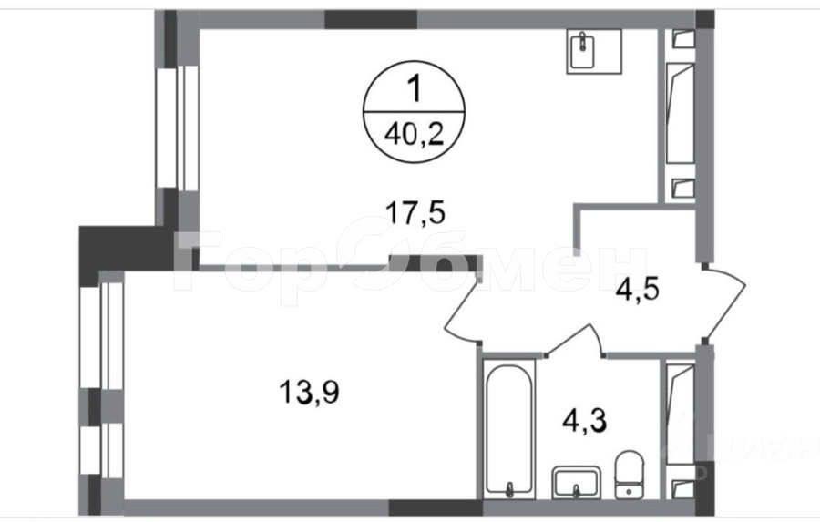
Общая площадь - 40.2
Жилая площадь - 13.9
Площадь кухни - 17.5
Площадь каждой комнаты - 13.9
Тип ремонта - требует ремонта
Тип дома - Монолитный

Доп. параметры

Тип санузла - совмещенный
Окна выходят - двор
Тип парковки - многоуровневая
Закрытая территория - да
Лифт - да
Пассажирских лифтов - 2
Грузовых лифтов - 1

Описание

Переуступка от физ. лица. ЖК Город-парк Первый Московский. Продается Евродвушка (кухня-гостиная, отдельная спальня, холл и совмещенный с/у). Без отделки. 7 фаза, корпус 3, секция 3. Срок сдачи - 1 квартал 2027 года. На данный момент завершены кровельные работы, ведутся работы по устройству фасада, установке оконных конструкций и монтажу сетей инженерно-технического обеспечения. Приступили к благоустройству территории. Город-парк Первый Московский, расположен всего в 7 км по Киевскому шоссе (Новая Москва). Из города-парка прямой выезд на Киевское шоссе и трассу Солнцево-Бутово-Варшавское шоссе. ТРАНСПОРТНАЯ ДОСТУПНОСТЬ: - 5 мин. на личном автомобиле или 10 мин. на автобусе 189 и 147 до станции метро "Филатов Луг" - 25 мин. пешком до станции метро "Филатов Луг" ИНФРАСТРУКТУРА: Около 7 фазы запланировано строительство детского сада, школы, 2 многоуровневых паркингов. Также на территории проекта есть все необходимые объекты действующей социальной и бытовой инфраструктуры: 8 детских садов, 5 школ, ТЦ, магазины, паркинги, аптеки и др. БЛАГОУСТРОЙСТВО: - Дворы без машин - Игровые зоны для детей, зоны для занятия спортом, зоны для отдыха с навесами/качелями - Детские площадки разделены по возрастным группам - Пешеходный и веломаршрут с двухполосной велодорожкой 2,5 м в ширину - Озеленение с растениями всесезонного цветения ОСОБЕННОСТИ АРХИТЕКТУРЫ: В каждой секции 3 корпуса предусмотрены: - колясочные во входных группах - кладовые помещения с -1 по 20 этажи - коммерческие помещения на 1 этажах - по 4 лифта: 2 пассажирских, 2 грузовых - видеонаблюдение, установленное в холлах первых этажей, у подъездов и на прилегающей территории АВТОРСКИЙ ДИЗАЙН: Входные группы выполнены по авторскому дизайну, оснащены системой "тёплый пол". В каждой входной группе будет располагаться комфортабельная зона ожидания с мягким диваном, акцентными пуфами и столиком. 1 соб-к, без обременений и без мат. капитала.

Продается 1-комн. квартира, 40.2 м², этаж 3/20

10 600 000 руб.
Москва, Новомосковский административный округ, Филимонковский район, Московский, микрорайон Первый Московский, жилой комплекс Первый Московский, 7-я фаза, 3
Филатов Луг - 10 мин.
Рассказовка - 10 мин.
Киевское - 9 км.

ДОРОШЕНКО АНЖЕЛА ИГОРЕВНА

+7 (916) 567-43-08