Продается 1-комн. квартира, 39 м², этаж 14/14
7 700 000 руб.
Санкт-Петербург, проспект Большевиков, 9к1
- 7 мин.
- 10 мин.
Мельникова Светлана Леонидовна
+7 (925) 509-43-74
Об объекте
Апартаменты - нет
Этаж - 14
Этажность - 14
Комнат в квартире - 1
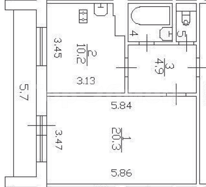
Общая площадь - 39
Жилая площадь - 20.3
Площадь кухни - 10.2
Площадь каждой комнаты - 20.3
Тип ремонта - косметический
Доп. параметры
Тип санузла - раздельный
Тип балкона - лоджия
Окна выходят - двор
Лифт - да
Мебель - да
Описание
Продаётся уютная 1-комнатная квартира 39 м² рядом с метро «Проспект Большевиков»!
Светлая и просторная квартира в доме с отличной локацией — всего 7 минут пешком до метро, зелёный двор, спокойные соседи и развитая инфраструктура района.
Удобная планировка: большая комната, отдельная кухня, застеклённая лоджия, раздельный санузел, просторная прихожая.
Дом кирпичный, тёплый и надёжный, ухоженный подъезд, новые лифты, аккуратная придомовая территория.
Всё необходимое — в шаговой доступности: школы, детские сады, поликлиника, торговые центры «Лондон Молл» и «О’КЕЙ», кафе, фитнес-клубы и зоны отдыха. Удобный выезд на КАД и в центр города.
✔ Один взрослый собственник
✔ Без обременений
✔ Прямая продажа
Квартира идеально подойдёт для проживания, сдачи в аренду или как надёжная инвестиция — район востребован, ликвидность высокая.
Стоимость: 7 899 000 ₽.
Возможен разумный торг.
Звоните — покажем в удобное время!
Квартира действительно заслуживает вашего внимания.